Applaus, Applaus: Neues von Hartl Haus
Avantgarde 126 F
Dieser Bungalow kombiniert moderne Architektur mit einem großzügigen, harmonischen Raumkonzept. Der offene Wohn-Essbereich mit großen Glasflächen schafft ein lichtdurchflutetes Zentrum des Hauses. Drei Schlafzimmer, ein großes Bad, ein separates WC sowie gut geplante Nebenräume bieten reichlich Platz für Familie und Gäste. Hier wird Komfort neu definiert – klar, modern und einladend.
Hausdetails
- Bebaute Fläche inkl. Terrassendach: 163,7 m²
- Nettogrundrissfläche: 124,74 m²
- Flachdach
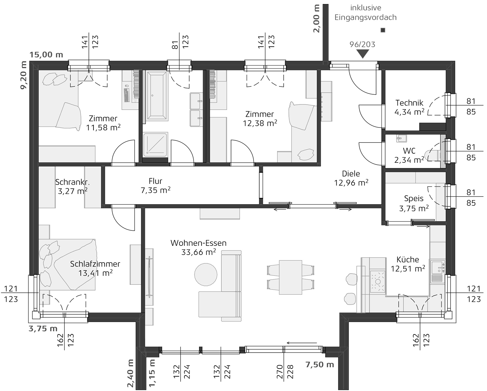
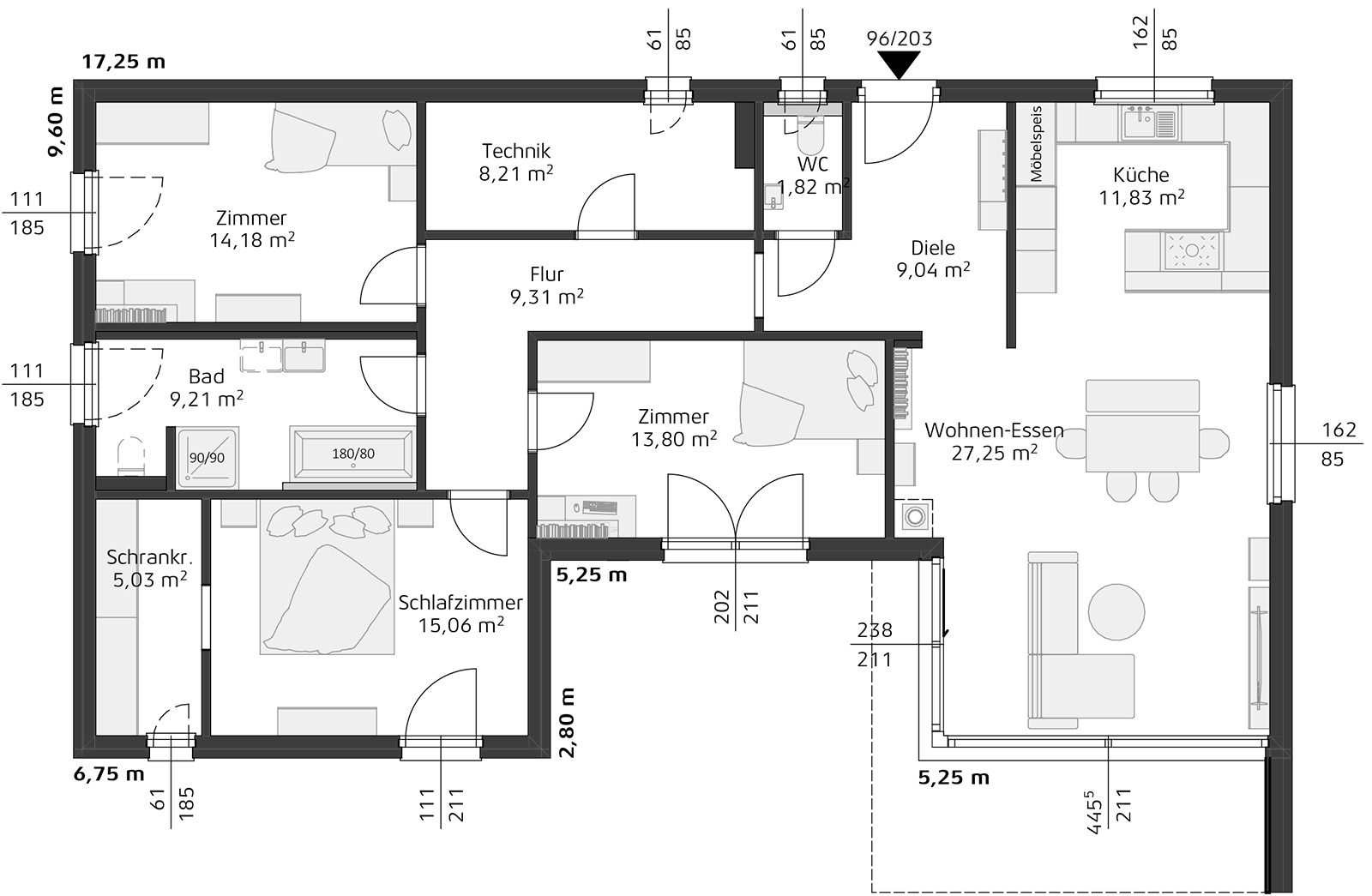
CLASSIC 124 S
Mit markanter Glasfassade und klaren Linien verbindet dieses Haus stilvolle Architektur mit maximalem Wohnkomfort. Ein offener Wohn-Essbereich mit großer Fensterfront bringt Licht und Weite ins Haus. Ein Schlafzimmer mit Schrankraum, zwei vielseitige Zimmer sowie eine moderne Küche mit Speis schaffen idealen Wohnraum für die ganze Familie. Dank energieeffizienter Bauweise vereint dieser Bungalow Design, Komfort und Nachhaltigkeit perfekt.
Hausdetails
- Bebaute Fläche: 160,40 m²
- Nettogrundrissfläche: 124,20 m²
- Satteldach: 25°
Elegance 122 W - Domus
Das Elegance 122 W verbindet klare Architektur mit optimal genutztem Wohnraum. Im Erdgeschoss bietet ein offener Wohn- und Essbereich mit Küche auf über 25 m² viel Platz für gemeinsames Leben. Ein zusätzliches Zimmer, WC, Technikraum und Diele runden das Raumangebot ab. Im Obergeschoss stehen zwei Kinderzimmer, ein Schlafzimmer mit Balkon und ein Bad zur Verfügung – ideal für die ganze Familie.
Hausdetails
- Bebaute Fläche: 75,00 m²
- Nettogrundrissfläche: 121,87 m²
- Walmdach: 22°
- EG: 61,29 m²
- OG: 60,58 m²
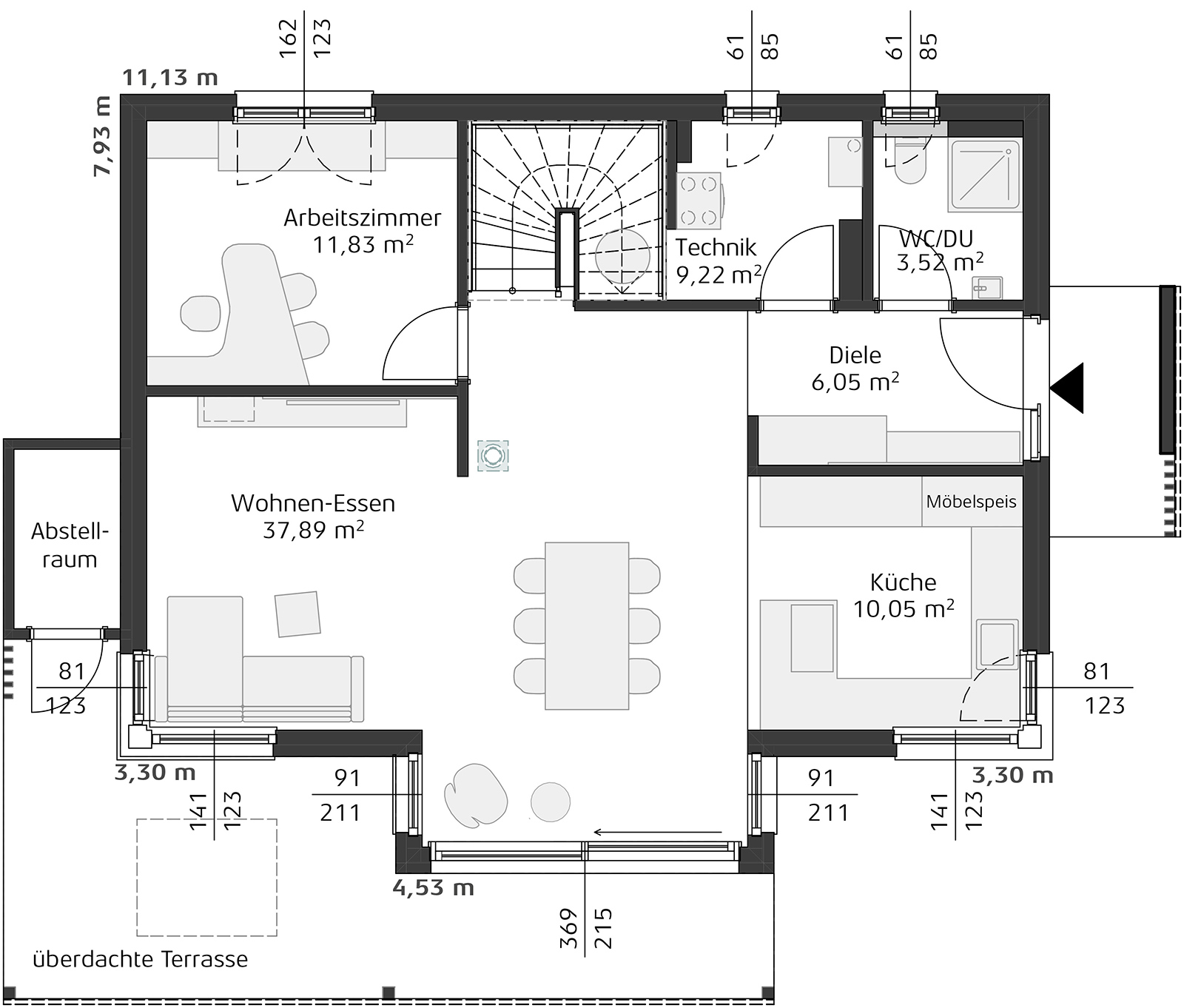
Trend 156 W Musterhaus in Haid
Die moderne Villa beeindruckt von außen durch eine begrünte, überdachte Terrasse, die das Haus harmonisch mit der Umgebung verbindet und Schutz vor Sonne und Regen bietet. Der Eingangsbereich führt über eine großzügige Diele in den offenen Wohn-Ess-Kochbereich, der durch einen lichtdurchfluteten Erker zusätzlichen Raum für einen großen Esstisch schafft. Der direkte Zugang zur Terrasse erweitert den Wohnbereich ins Freie und lädt zu entspannten Stunden im Grünen ein.
Im Inneren bereichern Produkte aus der HARTL HAUS Tischlerei das Haus funktional und ästhetisch. Die maßgefertigte Küche fügt sich perfekt ins Design ein, während individuell gestaltete Möbel, Innentüren und Einbauten eine harmonische und hochwertige Atmosphäre schaffen.
Ein vielseitig nutzbares Zimmer im Erdgeschoss kann als Schlaf-, Arbeits- oder Gästezimmer genutzt werden. Eine WC/Dusche-Kombination rundet das Erdgeschoss ab.
Im Obergeschoss erwartet Sie ein geräumiges Schlafzimmer sowie drei gleich große Zimmer, die als Kinder-, Gäste- oder Arbeitszimmer dienen können. Das große Familienbad mit separatem WC bietet Komfort und Raum für individuelle Gestaltungsmöglichkeiten.
Dieses durchdachte Konzept vereint zeitloses Design mit moderner Funktionalität und schafft ein Zuhause, das für die ganze Familie perfekt abgestimmt ist.
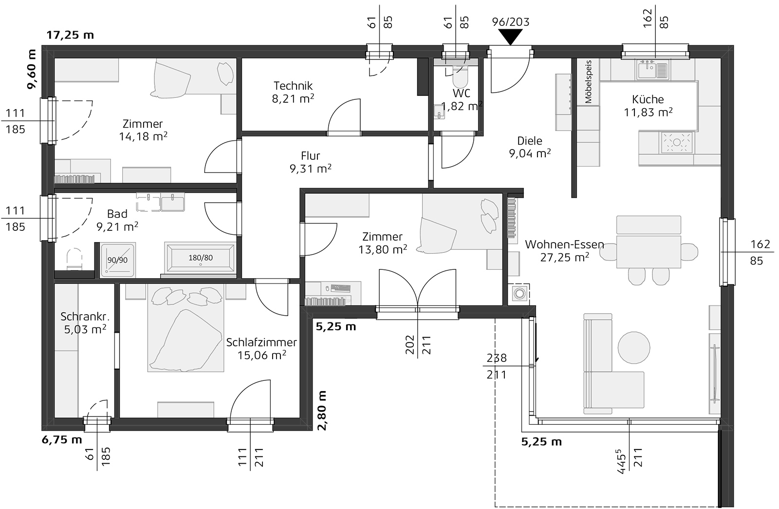
Musterhaus Trend 156 W - New Life
HARTL HAUS präsentiert das modernisierte Musterhaus „Trend 156 W“ im Musterhauspark Haid. Ursprünglich 2015 erbaut, wurde dieses Haus kürzlich im Innenbereich nach den neuesten Wohntrends renoviert. Mit einer großzügigen Nettogrundrissfläche von 156 m² verbindet es elegantes Design und durchdachte Funktionalität zu einem einzigartigen Wohngefühl.
Hausdetails
- Bebaute Fläche: 94,60 m²
- Nettogrundrissfläche: 156,04 m²
- Walmdach: 22°
- EG: 78,56 m²
- OG: 77,48 m²
