Herrliche Wohnung mit schöner Terrasse und Grünblick!
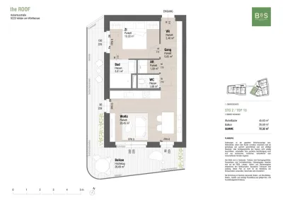
9220 Velden am Wörther See / Kärnten45,63 m2
Wohnfläche2
Zimmer€ 335.000,00
KaufpreisBeschreibung
"The Roof" – Ihre exklusive Wohnadresse in Velden am Wörthersee
Mit "The Roof" entsteht im Herzen von Velden ein einzigartiges Wohnbauprojekt, das modernes Design und nachhaltige Architektur harmonisch vereint. 25 hochwertig ausgestattete Wohnungen bieten Ihnen höchsten Wohnkomfort und eine ideale Verbindung von Eleganz, Funktionalität und Naturverbundenheit – perfekt für alle, die ein Zuhause mit dem gewissen Extra suchen.
Durchdachte Architektur für gehobene Ansprüche
Die Wohnungen von "The Roof" zeichnen sich durch klare Linien, großzügige Raumkonzepte und eine hochwertige Ausstattung aus. Die offen gestalteten Grundrisse schaffen ein lichtdurchflutetes Ambiente, das für modernes Wohnen steht. Balkone und Terrassen erweitern Ihren Lebensraum ins Freie und bieten Raum für Erholung und Rückzug inmitten einer ruhigen Umgebung.
Das Highlight des Wohnbauprojekts ist das begehbare Gründach. Diese grüne Oase bietet speziell gestaltete Ruhezonen und eine Outdoor-Küche, die zu geselligen Momenten oder entspanntem Verweilen einlädt. Das Gründach ist ein Paradebeispiel für die innovative und nachhaltige Planung, die "The Roof" auszeichnet.
Nachhaltigkeit als Lebensprinzip
Das Wohnbauprojekt setzt ein starkes Zeichen für umweltbewusstes Bauen und Leben. Die begrünten Dachflächen fördern die Biodiversität und sorgen für ein angenehmes Mikroklima. Eine integrierte Photovoltaikanlage liefert nachhaltige Energie, und durch den Einsatz regionaler Pflanzenarten wird ein Beitrag zur Erhaltung der heimischen Flora geleistet.
Für eine aktive, emissionsfreie Mobilität stehen den Bewohnern moderne E-Bikes zur Verfügung. Mit ihnen können Sie die malerischen Rad- und Wanderwege rund um Velden erkunden und die idyllische Natur genießen – ohne dabei die Umwelt zu belasten.
Velden – Lebensqualität im Herzen Kärntens
"The Roof" besticht nicht nur durch seine moderne Architektur, sondern auch durch seine hervorragende Lage. Velden am Wörthersee bietet eine einzigartige Kombination aus Natur, Freizeitmöglichkeiten und urbanem Flair. Die zentrale Position des Projekts ermöglicht Ihnen eine schnelle Erreichbarkeit der charmanten Ortsmitte mit ihrer Flaniermeile, erstklassigen Restaurants, Boutiquen und Cafés – ein beliebter Treffpunkt für Jung und Alt.
Die Region rund um Velden lädt das ganze Jahr über zu vielfältigen Aktivitäten ein. Im Sommer locken Rad- und Wanderwege sowie zahlreiche Freizeitmöglichkeiten in der Natur. In den kühleren Monaten genießen Sie Golf, entspannte Herbstspaziergänge oder Ausflüge in die umliegenden Wälder.
Im Winter verwandelt sich Velden in ein malerisches Winterwunderland. Der stimmungsvolle Adventmarkt rund um die Uferpromenade und den Weihnachtsengelpfad zieht Besucher aus der ganzen Region an. Genießen Sie das festliche Ambiente bei Glühwein und kulinarischen Spezialitäten oder stöbern Sie nach handgefertigten Geschenken. Wintersportliebhaber erreichen in kurzer Zeit die umliegenden Skigebiete, die ideale Bedingungen für Ski- und Snowboardausflüge bieten. Auch Eislaufen auf zugefrorenen Seen, Schlittenfahren und Winterwanderungen machen die kalte Jahreszeit zu einem Erlebnis.
Ihr neues Zuhause wartet auf Sie!
"The Roof" vereint modernes Wohnen, Nachhaltigkeit und eine erstklassige Lage zu einem Wohnkonzept, das begeistert.
Dieses Projekt ist mehr als ein Zuhause – es ist eine Investition in Lebensqualität, die keine Wünsche offenlässt.
Sichern Sie sich jetzt Ihre Traumwohnung bei "The Roof" und erleben Sie Wohnen neu – stilvoll, zukunftsorientiert und mitten in einer der schönsten Regionen Österreichs.
Verkauf und Beratung:
Kristina Ageljić
ageljic@dp-immo.at
+43 664 231 941 3
Dieses Projekt wird in Kooperation mit Sternad & Paulitsch Immobilien vermarktet.
Pläne
Anbieter kontaktieren
Weitere Objekte in diesem Projekt
Herrliche Wohnung mit schöner Terrasse und Grünblick!
Wohnfläche
Zimmer
Kaufpreis
Traumhafte Gartenwohnung mit Grünblick in Velden THE ROOF
Wohnfläche
Zimmer
Kaufpreis
"The Roof" - Luxuriöses Wohnen im Einklang mit der Natur!
Wohnfläche
Zimmer
Kaufpreis
Großartige Terrassenwohnung mit Grünblick!
Wohnfläche
Zimmer
Kaufpreis









