Wohnen im Styria Center – Stilvolle Wohnungen mit hochwertiger Ausstattung und bester Anbindung
8020 Graz / Steiermark38,71 m2
Wohnfläche2
Zimmer€ 799,00
BruttomieteBeschreibung
Styria Center – Modernes Wohnen im Herzen der Stadt
Das Styria Center in der Strauchergasse 1 kombiniert zeitgemäßes Design, durchdachte Wohnkonzepte und eine erstklassige Lage. Dieses Neubauprojekt bietet hochwertige Mietwohnungen, die sowohl den Bedürfnissen von Singles als auch von Familien gerecht werden.
Wohnkomfort auf höchstem Niveau
Das Styria Center umfasst 1- bis 4-Zimmer-Wohnungen mit optimal durchdachten Grundrissen. Jede Wohnung bietet eine Außenfläche, sei es ein Balkon, eine Loggia oder ein Garten, und ermöglicht so entspannte Momente im Freien. Die Küchen, Bäder und WCs sind bereits möbliert, sodass der Einzug komfortabel und unkompliziert erfolgt.
Zentrale Lage mit umfassender Infrastruktur
Direkt unter den Wohnräumen befindet sich das Einkaufszentrum Styria Center, das eine Vielzahl von Restaurants, Einkaufsmöglichkeiten und weiteren Dienstleistungen bietet. Die zentrale Lage ermöglicht eine ausgezeichnete Anbindung an den öffentlichen Verkehr, sowie die Nähe zu Schulen und Freizeitmöglichkeiten.
Vielfältige Wohnoptionen
Die Wohnungen im Styria Center sind auf verschiedene Lebenssituationen ausgerichtet. Ob gemütlicher Wohnraum für Singles oder großzügige Wohnungen für Familien – das Projekt bietet flexible Lösungen für unterschiedlichste Bedürfnisse.
Strauchergasse 5 Wohnung Top 9
Modernes Wohnen in zentraler Lage
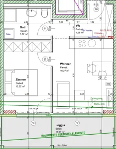
Die Wohnung liegt im 1. Obergeschoss und bietet eine durchdachte Raumaufteilung:
- Vorraum: 4,95 m²
- Zimmer: 12,22 m²
- Wohnküche: 16,27 m²
- Bad/WC: 5,27 m²
- Balkon: 11,96 m²
Bitte beachten Sie: Die beigefügten Fotos sind Musterfotos. Die Wohnung wird in gleichwertigem Zustand übergeben.
Kostenübersicht:
- Monatliche Miete: € 799,00 (inkl. Betriebskosten, Liftkosten und USt.)
- Kaution: 3 Monatsmieten
- Provision: Provisionsfrei
- Mietvertragsgebühr: € 300 (inkl. 20 % USt.)
Lagevorteile:
- Zentrale und dennoch ruhige Stadtlage
- Nahe Anbindung an öffentliche Verkehrsmittel
- Geschäfte für den täglichen Bedarf in unmittelbarer Umgebung
- Ärzte, Apotheken, Post und Banken in Gehweite
Energieeffizienz:
- HWB: 42,20 kWh/m²a (Klasse B)
- fGEE: 0,91 (Klasse B)
Kontakt:
Wir freuen uns auf Ihre Anfrage! Kontaktieren Sie uns gerne für weitere Informationen oder einen Besichtigungstermin.
Telefonisch erreichbar unter +43 6642323557 oder per E-Mail an benjamin.ghabras@prime-Immobilien.at
Wir weisen darauf hin, dass zwischen dem Vermittler und dem zu vermittelnden Dritten ein familiäres oder wirtschaftliches Naheverhältnis besteht.
Der Immobilienmakler erklärt, dass er – entgegen dem in der Immobilienwirtschaft üblichen Geschäftsgebrauch des Doppelmaklers – einseitig nur für den Vermieter tätig ist.
Pläne
Lagebeschreibung
Volksgarten, Orpheum, Kunsthaus, Graz Hauptbahnhof
Anbieter kontaktieren
Weitere Objekte in diesem Projekt
AB 01.11. verfügbar - Wohnen im Styria Center – Stilvolle Wohnungen mit hochwertiger Ausstattung und bester Anbindung
Wohnfläche
Zimmer
Bruttomiete
Wohnen im Styria Center – Stilvolle Wohnungen mit hochwertiger Ausstattung und bester Anbindung
Wohnfläche
Zimmer
Bruttomiete
Wohnen im Styria Center – Stilvolle Wohnungen mit hochwertiger Ausstattung und bester Anbindung
Wohnfläche
Zimmer
Bruttomiete
Verfügbar ab 01.10.2025 - Wohnen im Styria Center – Stilvolle Wohnungen mit hochwertiger Ausstattung und bester Anbindung
Wohnfläche
Zimmer
Bruttomiete










