Noch keine Schönheit – aber viel Potenzial! Raumwunder - Selbst Gestalten! Sanierungsbedürftige Altbauwohnung! U-Bahn ums Eck + Traumhaft renoviertes Altbauhaus + Optimalste Infrastruktur und Anbindung!
1030 Wien68,59 m2
Wohnfläche3
Zimmer€ 330.000,00
KaufpreisBeschreibung
Achtung - Neue TOP-Preise! U-Bahn um´s Eck! Hier ist für jeden die passende Wohnung dabei! Sanierte und unsanierte Wohnungen in verschiedenen Größen!
Aktuell wurde bei diesem schönen Altbauhaus bereits das Stiegenhaus renoviert, die Wohnungen haben neue 3-fach isolierte Fenster und neue Wohnungseingangstüren (Brandfschutztüren) wurden ebfalls bereits eingebaut.
Hier haben Sie die Qual der Wahl! Zum Verkauf stehen 16 sanierte als auch unsanierte Altbauwohnungen (trotzdem bereits neue Fenster und Eingangstüren) in verschiedenen Größen zwischen 30m² und 101m². Ob Studentenwohnung, WG, Pendlerwohnung, Pärchen-Hit oder Familienwohnung - hier gibt es für jeden die passende Immobilie.
Gestalten Sie zudem Ihre Wohnung ganz nach Ihren Wünschen!
Facts:
+ Bereits renoviertes Altbauhaus
+ 5 sanierte Wohnungen
+ 11 unsanierte Wohnungen
+ Bereits neu eingebaute 3-fach isolierte Fenster und Wohnungseingangstüren (Brandschutztüren)
+ Wohnungsgrößen zwischen 30m² und 101m²
+ Kaufpreise zwischen € 130.000.- und € 550.000.-
Schauen Sie sich das an! Wir beraten Sie gerne und zeigen Ihnen alle verfügbaren Einheiten!
www.schantl-ith.at
Bei konkretem Interesse senden wir Ihnen sehr gerne weiterführende Dokumente zu, wie:
o Grundbuchauszug
o Wohnungseigentumsvertrag
o Nutzwertgutachten
o Eigentümerversammlungsprotokoll (Falls vorhanden) etc...
Unser Service für Sie: Wenn Sie sich für diese Immobilie entschieden haben, begleiten wir Sie gerne vom Kaufanbot weg inkl. Klärung von Sonderwünschen und der Vertragsunterzeichnung über die Wohnungsübergabe bis hin zu diversen Ummeldungen wie Strom und Gas. Entsprechende Formulare oder auch Meldezettel stellen wir Ihnen sehr gerne zur Verfügung.
Gerne unterstützen wir Sie auch bei der Finanzierung Ihres Traumobjekts und finden mit unseren langjährigen Partnern die besten Konditionen für Sie.
Stark reduziert! Noch keine Schönheit – aber viel Potenzial!
Raumwunder - Selbst Gestalten! Sanierungsbedürftige Altbauwohnung! U-Bahn ums Eck + Traumhaft renoviertes Altbauhaus + Optimalste Infrastruktur und Anbindung!
Tolle Gelegenheit - jetzt zugreifen!
Aktuell wurde noch das Stiegenhaus renoviert und die Fassade erneuert.
Mehrere Wohnungen im Haus verfügbar! Wir zeigen Ihnen gerne alle verfügbaren Wohnungen - ebenfalls in einer weiteren Liegenschaft nur wenige Minuten entfernt!
Ein Lift (für jeden nutzbar) wird noch in den kommenden 3 Jahren ab Baubewilligung eingebaut, ohne dass Ihnen dabei Errichtungskosten entstehen.
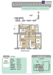
Ihre neue Wohnung ist aktuell sanierungsbedürftig und bietet Ihnen die Chance, Ihre Wünsche umzusetzen! Sie teilt sich in einen Vorraumbereich mit Platz für eine Garderobe, ein Badezimmer, ein WC, eine separate Küche mit Fenster und Platz für einen kleinen Esstisch, ein zentrales und geräumiges Wohn-Esszimmer, sowie 2 Schlafzimmer/Arbeitszimmer.
Viele Räume und Möglichkeiten auf 68m²!
Auf Kosten des Verkäufers werden/wurden aktuell noch die Fenster erneuert und neue 3-fach isolierte Fenster eingebaut sowie die Wohnungseingangstüren erneuert.
Wohnfläche: ca. 68,59m² + großes Kellerabteil: ca. 6,85m²
Kaufpreis: € 330.000.-
Bereits erfolgreich verkauft: TOP 9, TOP 8, TOP 33, TOP 27
Erfüllen Sie Ihren Wohntraum ganz nach Ihren Vorstellungen - wir beraten Sie gerne!
Bei konkretem Interesse senden wir Ihnen sehr gerne weiterführende Dokumente zu, wie:
o Grundbuchauszug
o Wohnungseigentumsvertrag
o Nutzwertgutachten
o Eigentümerversammlungsprotokoll (Falls vorhanden) etc...
Unser Service für Sie: Wenn Sie sich für diese Immobilie entschieden haben, begleiten wir Sie gerne vom Kaufanbot weg inkl. Klärung von Sonderwünschen und der Vertragsunterzeichnung über die Wohnungsübergabe bis hin zu diversen Ummeldungen wie Strom und Gas. Entsprechende Formulare oder auch Meldezettel stellen wir Ihnen sehr gerne zur Verfügung.
Gerne unterstützen wir Sie auch bei der Finanzierung Ihres Traumobjekts und finden mit unseren langjährigen Partnern die besten Konditionen für Sie.
Vereinbaren Sie noch heute einen Termin, wir beraten Sie gerne!
www.schantl-ith.at
Wir weisen darauf hin, dass zwischen dem Vermittler und dem zu vermittelnden Dritten ein familiäres oder wirtschaftliches Naheverhältnis besteht.
Der Vermittler ist als Doppelmakler tätig.
Pläne
Lagebeschreibung
Sie suchen nach dem gewissen Etwas? Sie möchten in der Stadt mit all ihren Vorteilen leben und doch nahe von großen Erholungsgebieten und der grünen Lunge Wien´s sowie der schönen Alten Donau? Hier müssen Sie keine Kompromisse eingehen! Hier vereint sich die Vielfalt von Cityflair und der Möglichkeit die Seele im schönen, grünen Prater baumeln zu lassen oder spontan einen Sprung ins kühle Nass an der Alten Donau zu machen. Profitieren Sie von einer optimalen Infrastruktur! U-Bahn, Straßenbahn und Bus befinden sich quasi vor der Türe und alle Geschäfte des täglichen Bedarfs erreichen Sie in wenigen Gehminuten. Öffis: U3 / Straßenbahn 18 / Busse 80A, 77A, N75 BIPA und BILLA direkt vor der Haustüre....
Anbieter kontaktieren
Weitere Objekte in diesem Projekt
Hier entsteht, was du draus machst! Entzückende Altbauwohnung - Selbst Gestalten! Sanierungsbedarf! U-Bahn ums Eck + Traumhaft renoviertes Altbauhaus + Optimalste Infrastruktur und Anbindung!
Wohnfläche
Zimmer
Kaufpreis
Noch keine Schönheit – aber viel Potenzial! Raumwunder - Selbst Gestalten! Sanierungsbedürftige Altbauwohnung! U-Bahn ums Eck + Traumhaft renoviertes Altbauhaus + Optimalste Infrastruktur und Anbindung!
Wohnfläche
Zimmer
Kaufpreis
Bring Ideen mit. Der Rest ist da! Tolle Familienwohnung/WG - Selbst Gestalten! Sanierungsbedürftige Altbauwohnung! U-Bahn ums Eck + Traumhaft renoviertes Altbauhaus + Optimalste Infrastruktur und Anbindung!
Wohnfläche
Zimmer
Kaufpreis
Wer nicht auf schlüsselfertig steht, ist hier richtig! 4-Zimmer Wohnung - Selbst Gestalten! Sanierungsbedürftige Altbauwohnung! U-Bahn ums Eck + Traumhaft renoviertes Altbauhaus + Optimalste Infrastruktur und Anbindung!
Wohnfläche
Zimmer
Kaufpreis




















