Top-Lage! Zwei moderne Einzelbüros im Co-Working-Büro
1090 Wien75 m2
Nutzfläche€ 350,00
NettomieteBeschreibung
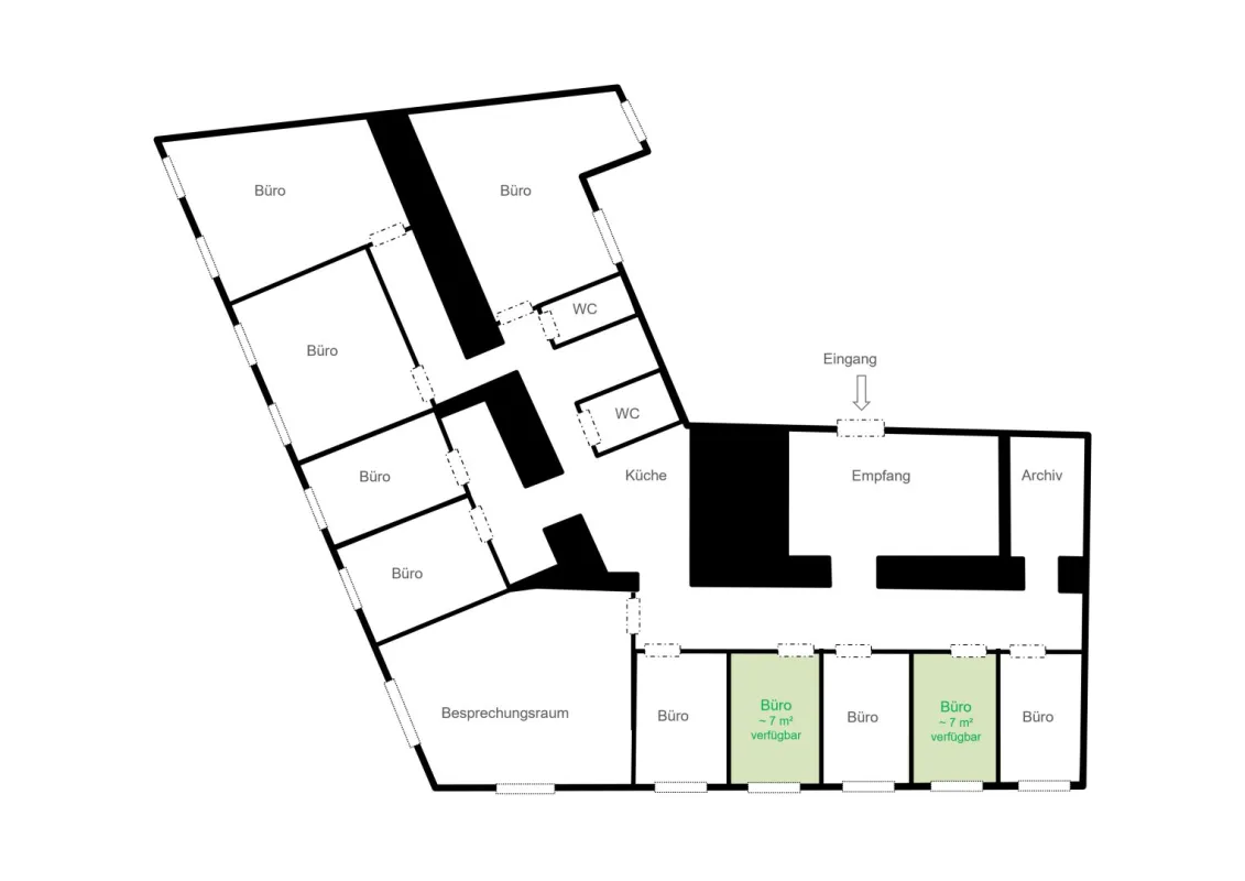
Das Co-Working-Büro mit einer Gesamtfläche von 200 m² überzeugt durch seine zentrale Lage, die gute Verkehrsanbindung und eine angenehme, ruhige Arbeitsatmosphäre.
Aktuell stehen zwei Einzelbüros mit je ca. 7 m² zur Verfügung. Die Büros werden unmöbliert vermietet; bei Bedarf können Schreibtisch, Stuhl oder Rollcontainer (nach Verfügbarkeit) übernommen werden.
Zur gemeinschaftlichen Nutzung stehen zur Verfügung:
- Besprechungs-/Meetingraum
- Empfangsbereich
- Teeküche
- Sanitäranlagen
Kosten pro Büro:
-
Miete: € 350,- netto/Monat (zzgl. 20 % USt)
-
Nebenkostenpauschale: € 80,- netto/Monat (zzgl. 20 % USt)
(inkl. Strom, Heizung, Internet/WLAN, Büroreinigung, ...)
Verkehrsanbindung:
In unmittelbarer Nähe befinden sich sind diverse Öffis:
- U-Bahn-Linie U4 Rossauer Lände oder Friedensbrücke
- Straßenbahn 5, 33, und D-Wagen
- Franz-Josefs-Bahnhof
Infrastruktur:
Sehr gute Infrastruktur mit zahlreichen Lokalen, Supermärkten und Einkaufsmöglichkeiten für den täglichen Bedarf in Gehweite.
Noch nichts gefunden? Wir informieren Sie über geeignete Immobilienangebote noch vor allen anderen.
Legen Sie jetzt Ihren individuellen Suchagenten unter folgendem Link an. Wir schicken Ihnen passende Immobilien exklusiv vorab zu.
Suchagent anlegen - https://accenta-immobilien.service.immo/registrieren/de
Hinweis gemäß Energieausweisvorlagegesetz: Ein Energieausweis wurde vom Eigentümer bzw. Verkäufer, nach unserer Aufklärung über die generell geltende Vorlagepflicht, sowie Aufforderung zu seiner Erstellung noch nicht vorgelegt. Daher gilt zumindest eine dem Alter und der Art des Gebäudes entsprechende Gesamtenergieeffizienz als vereinbart. Wir übernehmen keinerlei Gewähr oder Haftung für die tatsächliche Energieeffizienz der angebotenen Immobilie.
Wir weisen darauf hin, dass zwischen dem Vermittler und dem zu vermittelnden Dritten ein familiäres oder wirtschaftliches Naheverhältnis besteht.
Der Vermittler ist als Doppelmakler tätig.
Sie wollen auch Ihre Immobilien Verkaufen oder Vermieten?
Accenta Immobilien - Ihr Partner für Immobilienvermittlung
www.accenta-immo.at
01/997 12 93
Pläne
Lagebeschreibung
Servitenviertel, U4 Rossauer Lände, Franz-Josefs-Bahnhof










