RARITÄT – JAHRHUNDERTWENDE-LANDHAUS MIT IDYLLISCHEM GARTEN & ANGRENZENDEM BAUGRUNDSTÜCK!!
2123 Schleinbach / Niederösterreich5
Zimmer1.456 m2
Grundfläche174,98 m2
Nutzfläche€ 549.000,00
KaufpreisBeschreibung
"Der Garten ist der letzte Luxus unserer Tage, denn er erfordert das, was in unserer Gesellschaft am kostbarsten ist, Zeit, Zuwendung und Raum."
(Prof. Dr. Ing. Dieter Kienast 1945 – 1998)
Diese zauberhafte Liegenschaft begeistert nicht nur durch das großzügige Raumangebot und das charmante Ambiente des Jahrhundertwende-Landhauses, sondern vor allem durch den über fast 50 Jahre hindurch liebevoll angelegten und gepflegten Garten. Zusammen mit dem durch den Gemeindebach getrennten Baugrundstück, entsteht das Bild einer malerisch friedlichen Parkanlage. Und dieser Ort der Ruhe befindet sich nur eine halbe Stunde von Wien entfernt mit einer eigenen S-Bahnstation.
"Ein Garten ist eine Kunstnatur."
(Robert Musil 1880 – 1942)
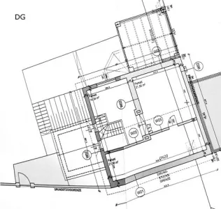
Ebenso feinsinnig wurde das ca. 1907 errichtete Gebäude erweitert, kontinuierlich renoviert und instandgehalten, ohne den historischen Charakter zu beeinträchtigen.
Besonders die an die Wohnküche angebaute ca. 20m² große und überdachte Terrasse evoziert das Gefühl inmitten einer stimmungsvollen Oase zu sitzen.
"Gärten sind die zärtlichsten Spuren, die Menschen auf dieser Welt hinterlassen können."
(Autor unbekannt)
Das Anwesen befindet sich am Rande des Ortsgebietes in absoluter Ruhelage, aber in den Ort eingebunden. Der Gemeindebach teilt die gegenständliche Grundfläche (2 Einlagezahlen) von insgesamt ca. 1.456m2 optisch sowie ganz konkret in zwei Hälften, wobei der Bach selbst eine Art Grenze darstellt und im Besitz der Gemeinde ist. Das Anwesen wirkt durch diese besondere geografische Lage noch größer. Auf dem vorderen Grundstück befindet sich das Wohnhaus mit überdachter Terrasse und überdachtem Autoabstellplatz.
Auf der anderen Seite des Baches wird das Baugrundstück (ca. 806m2) zur Straße hin durch einen Holzzaun begrenzt und ist durch eine eigene Toreinfahrt zugänglich. Auf diesem hinteren Grundstück steht bereits eine Doppelgarage mit einer weiteren Werkstatt, ohne die spätere Bebauung zu beeinträchtigen. Eine solide Brücke über den Bach verbindet die beiden Grundstücke direkt und bequem.
"Unkraut ist die Opposition der Natur gegen die Regierung der Gärtner."
(Oskar Kokoschka 1886 – 1980)
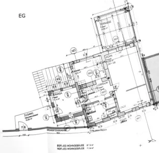
Raumaufteilung des Hauses:
- 1 Veranda
- 1 Vorraum
- 1 Raum
- 1 Wohnküche mit einer neuen Nolte Küche (ca. 3Jahre alt)
- 1 Bad
- 1 WC
- 1 Terrasse (Zugang von der Wohnküche)
- 3 Räume
- 1 Bad mit Wanne & WC
- 1 begehbarer Schrank
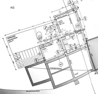
KG:
- Technikraum
- 2 Räume
- Sauna
-
Zweiter Hausausgang
Das Haus ist teilunterkellert und wird mit einer Brennwerttherme beheizt und das Warmwasser wird mittels einer Wärmepumpe produziert.
In der Wohnküche befindet sich noch zusätzlich ein Holzofen.
Ein elektrisches Tor erleichtern die Zufahrt und das Parken am überdachten Stellplatz, wo sich noch eine geräumige Werkstatt befindet.
Verkehrsanbindung:
Mit der Anbindung an die S1 (eigene Schnellbahnstation) erreicht man Wien Floridsdorf in einer knappen halben Stunde
Für weitere Fragen und einen Besichtigungstermin stehe ich gerne zur Verfügung:
M. Schreibmaier: 0699 11 08 99 13
Hinweis gemäß Energieausweisvorlagegesetz: Ein Energieausweis wurde vom Eigentümer bzw. Verkäufer, nach unserer Aufklärung über die generell geltende Vorlagepflicht, sowie Aufforderung zu seiner Erstellung noch nicht vorgelegt. Daher gilt zumindest eine dem Alter und der Art des Gebäudes entsprechende Gesamtenergieeffizienz als vereinbart. Wir übernehmen keinerlei Gewähr oder Haftung für die tatsächliche Energieeffizienz der angebotenen Immobilie.
Wir weisen darauf hin, dass zwischen dem Vermittler und dem zu vermittelnden Dritten ein familiäres oder wirtschaftliches Naheverhältnis besteht.
Der Vermittler ist als Doppelmakler tätig.
















































