++ Anbot aufliegend: Wohnen am Park – urbanes Lebensgefühl mit grüner Seele! ++
2392 Sulz im Wienerwald / Niederösterreich130 m2
Wohnfläche4
Zimmer250 m2
Grundfläche€ 420.000,00
KaufpreisBeschreibung
🏡 Erstbezug nach Sanierung – modernes Reihenhaus in Sulz im Wienerwald
Einziehen & loswohnen: hochwertig saniertes Reihenhaus in ruhiger Grünlage mit Gemeinschaftspool und Parkgarten.
Highlights: Erstbezug nach Komplettrenovierung – fast alles ist neu! Offenes Wohngefühl auf zwei Etagen, durchdachter Grundriss, helle Räume, direkter Zugang zur Garage.
Sanierungsdetails: Komplette Küche mit allen Geräten, Fenster + Beschattung und Insektenschutz, Terrassenboden + Markise, Massivholzparkett, Eichentreppe, offene Küche mit Geräten, neues Bad & WCs, neue Elektrik & Heizkörper, Deckendämmung zum Spitzboden.
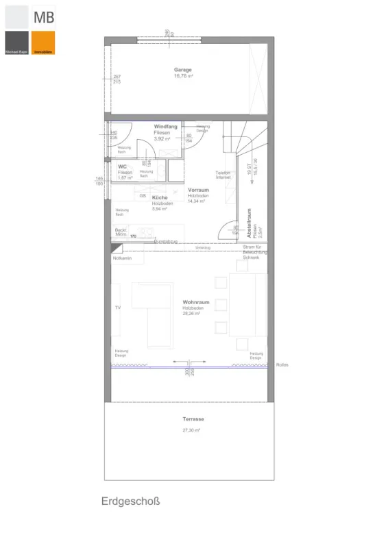
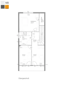
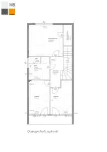
Raumaufteilung: EG: Vorzimmer mit Gäste-WC, Abstellraum/Speis, offener Wohn-/Essbereich mit Zugang zu Terrasse & Garten, offene Küche, Zugang zur Garage. OG: 2 Schlafzimmer + offener Wohnbereich (vorbereitet für 3. Zimmer), großes Bad mit Eckwanne, Dusche, Doppelwaschbecken, WC, Waschmaschinenanschluss. Südbalkon von 2 Zimmern begehbar, Dachboden über ausziehbare Leiter erreichbar. Vorbereitung für Kachel-/Schwedenofen vorhanden.
Lage & Infrastruktur: Ruhige Grünlage mit gepflegtem Gemeinschaftspool & Parkgarten.
Ums Eck: Nah & Frisch, Post, Bank, Arzt, Apotheke, Spielplatz, Reitställe, Tennisplätze, Restaurants, Café, Friseur sowie die Busstation:
Bus 255 (Bahnhof Liesing), Bus 264 (Bahnhof Mödling), A21 in 2 PKW-Minuten.
Kosten monatlich (inkl. USt): Betriebskosten: EUR 290 | Rücklage: EUR 158 | Heizkosten: nur EUR 100
Bei Interesse bitte einfach melden:
Roswitha Adler
Mobil: 0676/4554 267
Email: adler@mb-immobilien.at
Bin (fast) jederzeit erreichbar! Einzelbesichtigung flexibel und spontan möglich.
Wir weisen auf unser wirtschaftliches Nahverhältnis mit dem Abgeber und auf unsere Vermittlungstätigkeit als Doppelmakler hin.
Die von uns gemachten Angaben beruhen auf Informationen und Mitteilungen durch Dritte, insbesondere durch die Verkäufer und sind daher ohne Gewähr.
Pläne
Lagebeschreibung
8 Minuten nach Wien/Rodaun, 10 min zum Zentrum Riverside und Zug-Busbahnhof Liesing, 20 Minuten in die SCS
In der Umgebung
Bus
1km
Autobahnanschluss
5km
Arzt
1km
Bank
1km
Bankomat
1km
Post
5km
Schule
4km
Kindergarten
3km
Höhere Schule
5km
Universität
5km
Supermarkt
1km
Quelle: OpenStreetMap / Entfernungsangaben Luftlinie































