Jetzt investieren: Saniertes Wohnhaus – Eigentum nahe dem Zentrum und schneller Anbindung zur WU
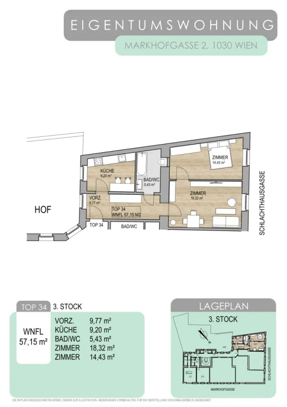
1030 Wien57,15 m2
Wohnfläche2.5
Zimmer€ 270.000,00
KaufpreisBeschreibung
Markhofgasse 2 – Eigentum mit viel Potenzial
Direkt bei der U3-Station „Schlachthausgasse“ stehen in einem sanierten Gebäude – mit renovierter Fassade und Stiegenhaus – noch 11 von insgesamt 34 Wohneinheiten zum Verkauf. Die Wohnungen befinden sich in teilsaniertem bzw. unsaniertem Zustand und verfügen über Wohnflächen zwischen 33 m² und 100 m².
Ob Eigennutzung Vermietung oder Veredelung – die noch verfügbaren Einheiten stellen eine seltene Gelegenheit für Anleger und Eigennutzer dar, in eine wertsteigernde Lage mit langfristigem Potenzial zu investieren.
 
Zum Haus:
- Sanierter Allgemeinzustand: Das Stiegenhaus und die Fassade wurden kürzlich umfassend renoviert und präsentieren sich in einwandfreiem Zustand – eine sorgenfreie Investition.
 - Moderne Fenster mit 3-fach-Verglasung: In vielen Wohnungen wurden neue Fenster mit 3-fach-Isolierverglasung verbaut – energieeffizient und schallisolierend.
 
Lage & Infrastruktur – urban, zentral & zukunftssicher
Die Markhofgasse 2 besticht durch ihre erstklassige Lage direkt an der U3-Station „Schlachthausgasse“ – in nur 6 Minuten erreicht man den 1. Bezirk, das historische Zentrum Wiens. Auch der Flughafen Wien ist in rund 30 Minuten bequem erreichbar – ideal für Stadtmenschen und Pendler.
Ein besonderes Zukunftsplus bietet die Verlängerung der Straßenbahnlinie 18 durch den Prater bis zur U2-Station Stadion (Fertigstellung Sommer/Herbst 2026). Dadurch entsteht eine neu schnelle Verbindung zur Wirtschaftsuniversität Wien und zum Stadionviertel – ein starker Treiber für langfristige Wertsteigerung und optimale Erreichbarkeit.
Öffentliche Verkehrsanbindung
- U3 „Schlachthausgasse“ – nur 5 U-Bahn Stationen bis zum Stephansplatz
 - Straßenbahnlinie 18 – ab 2026 direkte Verbindung zur U2 Stadion und U6 Burggasse/Stadthalle
 - Bus 77A – Richtung Rennweg & 2. Bezirk
 - Bus 80A – Richtung Praterstern & Donaukanal
 
Nahversorgung/Einkaufsmöglichkeiten
- Supermärkte: BILLA, BIPA vor der Tür
 - Apotheke, Fitnessstudio
 - Landstraßer Hauptstraße fußläufig erreichbar
 - Das Gasometer als Shopping-, Event- und Entertainment-Zentrum
 - Schulen, Kindergärten und medizinische Einrichtungen in unmittelbarer Umgebung
 
Freizeit & Natur
Der nahegelegene Grüne Prater – einer der größten und schönsten Stadtparks Europas – bietet ein außergewöhnliches Freizeitangebot: Laufen auf der Hauptallee, Tennisplätze, das Stadionbad im Sommer oder entspannte Radtouren im Grünen. In 15 Minuten zu Fuß, 4 Minuten mit dem Fahrrad oder ab 2026 in nur 2 Stationen mit der Linie 18 erreichbar.
Lernen Sie diese besondere Liegenschaft persönlich kennen – wir freuen uns auf Ihre Anfrage
Pläne
                                    
                            
                            

                    






