Helle 3-Zimmer-Wohnung mit Balkon und PKW-Stellplatz in ruhiger Wohnlage in Obernberg
4982 Obernberg am Inn / Oberösterreich71,37 m2
Wohnfläche3
Zimmer€ 799,24
BruttomieteBeschreibung
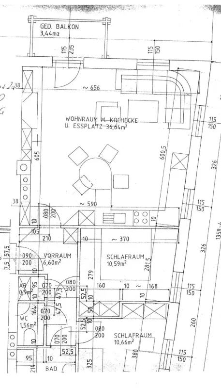
Die helle, gut aufgeteilte 3-Zimmer-Wohnung im 1. Obergeschoss (mit Lift) besteht aus Vorraum, Bad, WC, AR, Kochen/Wohnen/Essen und zwei Schlafzimmern mit einer Gesamtwohnnutzfläche von ca. 71,37 m² sowie einem kleinen Balkon mit 3,40 m².
Der in der Wohnung befindliche (ältere) Küchenblock kann günstig vom Vormieter abgelöst werden.
Weiters gehören zum Mietgegenstand ein Abstellraum sowie ein eigener PKW-Abstellplatz.
Bei Interesse bitten wir um Bekanntgabe ihrer vollständigen Kontaktdaten (Name, Adresse, Telefonnummer und E-Mail), damit wir Ihre Anfrage bearbeiten können. Gerne stehen wir für nähere Auskünfte bzw. zur Vereinbarung eines unverbindlichen Besichtigungstermines zur Verfügung!
Wir weisen darauf hin, dass zwischen dem Vermittler und dem zu vermittelnden Dritten ein familiäres oder wirtschaftliches Naheverhältnis besteht.
Der Immobilienmakler erklärt, dass er – entgegen dem in der Immobilienwirtschaft üblichen Geschäftsgebrauch des Doppelmaklers – einseitig nur für den Vermieter tätig ist.
Pläne
Lagebeschreibung
Das Ensemble - ehemaliges „Ledererhaus“ - besteht aus 3 Baukörpern und stammt aus der Mitte des 19. Jahrhunderts. Es befindet sich am Ortsrand von Obernberg, in ruhiger idyllischer Wohnlage. 1998 wurden die Gebäude saniert bzw. teilweise neu errichtet und - unter Berücksichtigung der zum Teil historischen Bausubstanz - 28 Wohnungen in unterschiedlichen Größen eingebaut. Architektonisch wertvolle Kleinode wurden liebevoll restauriert und erhalten. Ausreichend PKW-Abstellplätze sowie Allgemeinräumlichkeiten für Fahrräder, Wasch- und Trockenraum stehen dem Mieter zur Verfügung.







