Geschäftslokal im Erdgeschoß und Souterrain | Beste Lage im Nibelungenviertel
1150 Wien202,17 m2
Nutzfläche€ 2.365,52
NettomieteBeschreibung
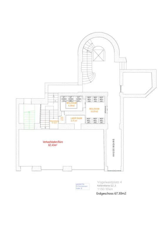
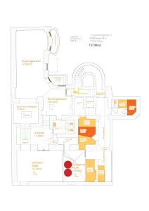
Dieses Geschäftslokal wird derzeit aufwändig generalsaniert. Die Flächen teilen sich in einen Bereich im Erdgeschoß mit etwa 62 m² Verkaufs-/Kundenfläche sowie Lagerflächen und einen Bereich im Souterrain/Keller mit etwa 76 m² Büro-/Verkaufs-/Lagerflächen sowie einem Lager mit etwa 32 m² und Nebenräumen (WC, Waschraum, Abstellraum) und einer kleinen Terrasse (ca. 3,44 m²). Die beiden Ebenen sind über eine breite Treppe miteinander verbunden.
Derzeit können im Einvernehmen mit dem Vermieter noch Änderungen vorgenommen werden bzw. Wünsche des Mieters/der Mieterin berücksichtigt werden.
Wir weisen darauf hin, dass zwischen dem Vermittler und dem zu vermittelnden Dritten ein familiäres oder wirtschaftliches Naheverhältnis besteht.
Der Vermittler ist als Doppelmakler tätig.
Pläne
Lagebeschreibung
Das Nibelungenvierte ist eines der schönsten Grätzel (Bezirksteile) des 15. Wiener Gemeindebezirks Rudolfsheim-Fünfhaus, dessen Straßen mehrheitlich nach Figuren aus dem Nibelungenlied benannt wurden. Das Gebäue verüft über einen begrünten Innenhof mit Fahrrad-Abstellmöglichkeiten. Das Viertel wird im Norden von der Gablenzgasse, im Osten vom Vogeweidplatz, im Süden von der Hütteldorfer Straße und im Westen von der Stutterheimstraße begrenzt. Das Zentrum bilden der mit Pappeln bestandene Kriemhildplatz und die Allee der Markgraf-Rüdiger-Straße. Öffentliche Verkehrsmittel + U-Bahn Linie U6 (Burggasse-Stadthalle) und Linie U3 (Schweglerstraße) + Straßenbahn Linie 6, 9, 18 und 49 + Bus Linie 48A Shopping, Unterhaltung & Gastronomie + Lugner City (72 Shops, Gastronomie, Kino, 500 Stellplätze) + Stadthalle + Café-Restaurant Oben, Urban-Loritz-Platz + Stadtbibliothek Wien, Urban-Loritz-Platz + XXX-Lutz + Möbelix + Westbahnhof Supermärkte + 3 x Billa, Beingasse 30, Neubaugürtel 38 und Giselhergasse 11 + Billa Plus, Lugner City + Hofer, Tannengasse 19 Schulen & Kindergärten + Kindergarten und -hort d. Wr. Kinderfreunde, Hütteldorfer Str. 16-22 + Berufsschule für Handel und Reisen Hütteldorfer Str. 7-17 Ärzte + Ärztezentrum Lugner City + Dr. Anna Denk (Allgemeinmedizin), Dankwartgasse 6 + Dr. Rudolf Wagenleitner (Allgemeinmedizin), Märzstraße 11 + Dr. Christian Roth (HNO), Gablenzgasse 11 + Dr. med. univ. Peter Parvis Daryai (Allgemeinmedizin), Gablenzgasse 4 + Dr. Hans Rauschmeier (Urologie), Schweglerstraße 24 + Univ. Prof. Dr. Mahmood Manavi (Frauenheilkunde), Vogelweidplatz 10-11 Apotheken + Lindwurmapotheke, Glablenzgasse 31 + Apotheke zur Heiligen Anna, Neubaugürtel 19 Parks + Märzpark + Vogelweidpark









