Erstbezugs-Maisonette im Neubau mit Garten und Terrasse – Wohnen im Grünen
5202 Neumarkt am Wallersee / Salzburg99,13 m2
Wohnfläche4
Zimmer€ 645.000,00
KaufpreisBeschreibung
LOGENPLATZ IM GRÜNEN
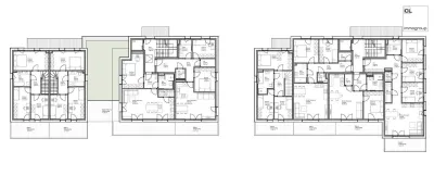
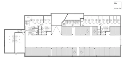
Das Neubauprojekt mit zwei Wohnhäusern und insgesamt siebzehn modernen Wohneinheiten in der Stadtgemeinde Neumarkt am Wallersee bietet hohe Wohnqualität gepaart mit moderner Architektur und attraktiven Außenflächen. Die nachhaltige Bauweise, das durchdachte Raumkonzept, der Fokus auf hohe Wertigkeit und die ruhige Lage im Grünen lassen Wohnträume wahr werden. Willkommen bei Ihrem Logenplatz im Grünen. Der Baubeginn erfolgt 2025.
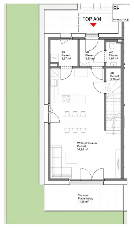
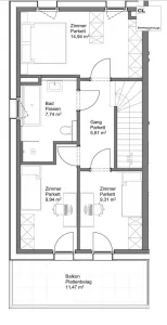
TOP A-04: 4-Zimmer-Maissonette mit Garten
Der durchdachte Grundriss erstreckt sich über zwei Etagen und bietet ein großzügiges Raumgefühl sowie Wohnkomfort auf höchstem Niveau.
Ein besonderes Highlight ist der private Garten mit angrenzender Terrasse – ideal zum Entspannen, Gärtnern oder für gemütliche Stunden mit Familie und Freunden im Freien. Großzügige Fensterflächen sorgen für helle Räume und eine angenehme Wohnatmosphäre.
Jeder Wohnung sind ein oder mehr Tiefgaragenstellplätze zu je € 26.000,- zugeordnet und/oder ein Freistellplatz um € 12.000,-
Der Vermittler ist als Doppelmakler tätig.
Pläne
Lagebeschreibung
Siehe Lageexposé!










